MPB DIY (2007)

The MediaPackBoard (MPB) is a project that was planned for several years and was finally put together in the spring of 2005. The idea for this portable screening/performance unit evolved from earlier the portable gallery/performance projects – TRUNK: expositions près chez vous / exhibiting near you – TRUNK75 and LOCATION, LOCATION, LOCATION: We Are Getting Closer, a cross-Canada wireless web cam project.

 

MediaPackBoard Curates 2007 is the 3rd phase of the MPB project. It seems like a good time to put out some ‘how to build your own’ information along with an invitation to exchange video programs between the locations of individuals or groups interested in the idea of taking screenings and performances into the public / itinerant space.

 

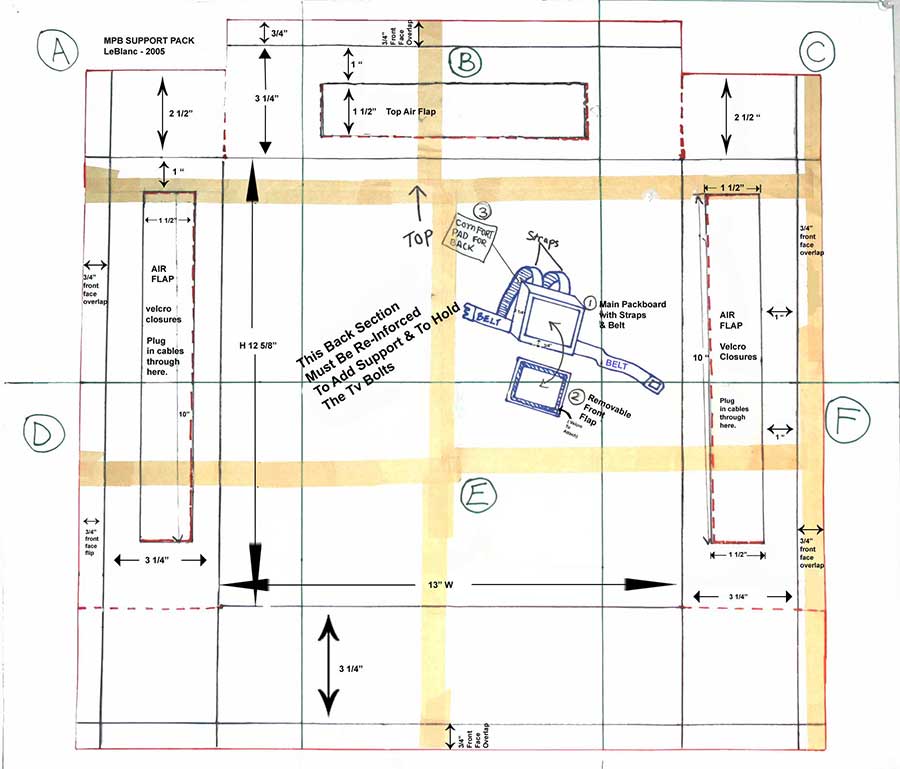
The MPB went through several changes during the research and development until a convenient and functional DYI unit was achieved. The MediaPackBoard consists of a flat-screen television monitor mounted on a supporting backpack unit. Through the use of a camcorder, the wearer is able to screen (playback) pre-recorded videos on the backpack MPB TV unit or, through the use of the camera, to interact with the public while simultaneously displaying that interaction. When the audience member becomes the featured attraction on the television monitor, the MPB presenter becomes a kind of host or member of the audience as well. The wearer is not able to see the TV screen but is able to know what is appearing on her / his back by following the action through the camcorder viewfinder. A compact 12-volt battery and DC to AC power inverter connected to the TV make the portability of this itinerant gallery/screening/performance unit possible. The 12-volt battery has the popular ‘cigarette lighter’ adaptor used to power small chargers in cars. The battery features a ‘flash warning’ when the power is getting low, it cuts in and out a few times. When this happens, you have to shut down the whole unit as the LCD TV could sustain damage if the battery power is allowed to completely drain. Fully charged, the battery will last slightly longer than an hour. The inverter has a matching cigarette lighter adaptor and a three-prong plug-in to accommodate the TV connection. A clear Plexiglas shield in front of the TV screen is a good idea. (Easier to replace than a TV) The entire MPB apparatus weighs approximately 30 lb. (About 14 kg)

Category

Date

Tags